Menu
PROJE

K1 EVİ

2014 BOZCAADA
KONUT |
Mimari proje 

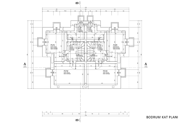
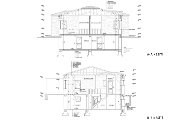
Mimari proje hazırlanırken kullanıcıların ihtiyaçları üzerine ortak bir terasa açılan bina girişleri bulunan simetrik planlı açık salon ve mutfaklı bir planlama yaratılmıştır. Ev taş olarak tasarlanmış, bulunduğu arazinin ön tarafı tamamen üzüm bağı ve meyve ağaçlarına ayrılarak arazinin arka noktasında konumlanmıştır.