Menu
PROJE

K2 EVİ

2014 BOZCAADA
KONUT |
Mimari proje 

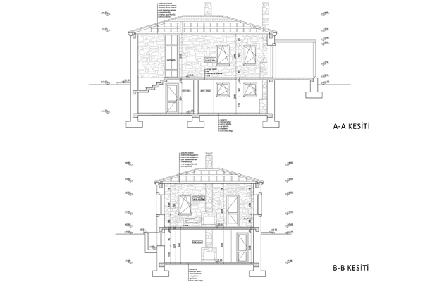
Mimari proje hazırlanırken arsa sınırları ve çekme mesafeleri belirleyici olmuştur. Yapı dikdörtgen planlı olup merdiven, mutfak ve banyo mekanları lineer bir hatta düzenlenerek geniş ve açık bir yaşama alanı yaratılmıştır.