Menu
PROJE

I1 EVİ

2015 GÖKÇEADA - Tepeköy
Rölöve – Restitüsyon – Restorasyon projesi

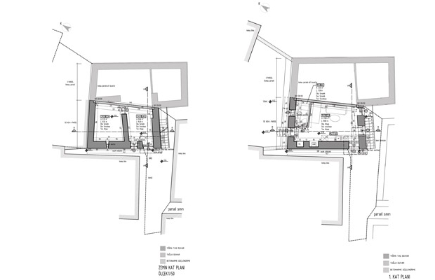
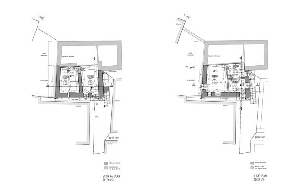
Gökçeada Tepeköy 132 ada 4 parselde yer alan yapı iki katlı ve kargirdir. Aynı ada 3 parselde bulunan, başka bir kullanıcıya ait olan yapı ile bitişik olup, 3 ve 4 parseller tekil bir bina görünümündedir.

Yapının rölöve ölçümleri, konvansiyonel yöntemlerin yanında lazer ölçümü ile de yapılmıştır.

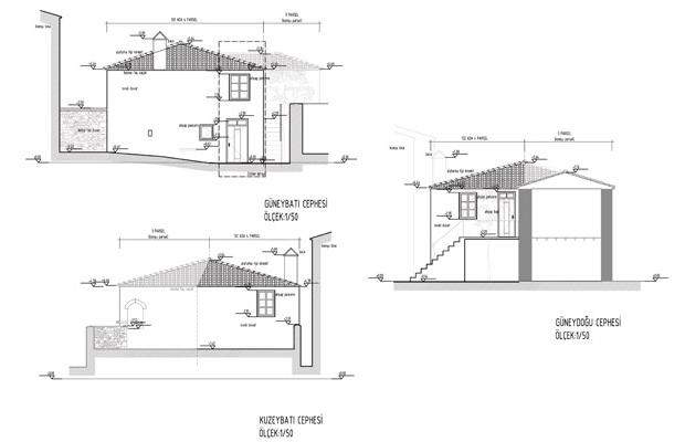
Yapının restitüsyonuna ait veriler, yapı sahibine ve mimari gözlemlere dayalı olarak hazırlanmıştır. Yapının tarihsel sürecinde geçirdiği majör değişiklikler bulunmamakla birlikte, zamanla yok olmuş, bozulmuş, yıkılmış yapı elemanları bulunmaktadır. Eksik kapı ve pencereler hem yapının kendisinden hem de aynı kütleyi paylaşan 3 parselden referans alınarak çizilmiştir.

3 ve 4 parsellerin sınırları belirlenirken, aynı kütleye ait olduklarından çatı biçimlenişine göre iki parsele ayrılmış olup bu durumun yapının plan şemasıyla bir bağlantısı bulunmamaktadır. Buna göre yapının restorasyonu hazırlanırken parsel sınırı esas alınmıştır.