Menu
PROJE

C1 BUTİK OTEL

2016 GÖKÇEADA - Kaleköy
OTEL |
Mimari proje

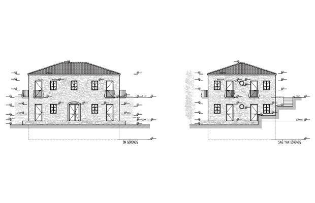
Gökçeada Kaleköy’de yer alan kaleye yakın ve deniz ve köy manzarası bulunan eğimli bir arazide 3 adet tip butik otel projesi tasarlanmıştır. Bu yapılar dikdörtgen planlı ve simetrik düzendedir. Eğimin yapıyla ilişkisi, üst kottan da girilebilen odaların kazanımına yol açmıştır. Her yapıda 8’er yatak odası bulunan blokların tamamı taş kaplamadır.