Menu
PROJE

C2 KÖY EVİ

2016 GÖKÇEADA - Tepeköy
Rölöve – Restitüsyon – Restorasyon projesi

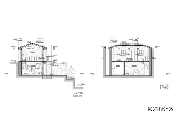
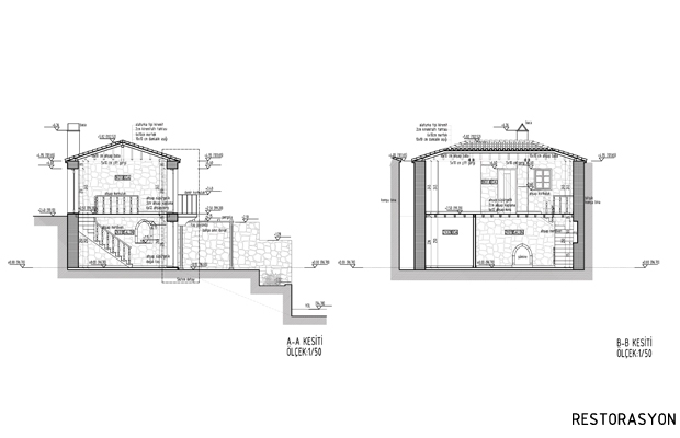
Yapı, Tepeköy Meydanının güneybatısında, 91.32 m² yüzölçümüne sahip bir arsa içinde yer alır. Konut işlevli yapı günümüzde yıkılmış durumda olup yalnızca kuzeydoğu duvarına ait bir kalıntı bulunmaktadır.

Araziye giriş, güneydoğu tarafından bir bahçe içinden olup, araziye yerleşimi sebebiyle yapıya alt ve üst kotlardan iki taraflı geçiş sağlanabilecek durumdadır. Arazinin alt ve üst noktaları arasındaki kot farkı yaklaşık olarak 5 metredir.
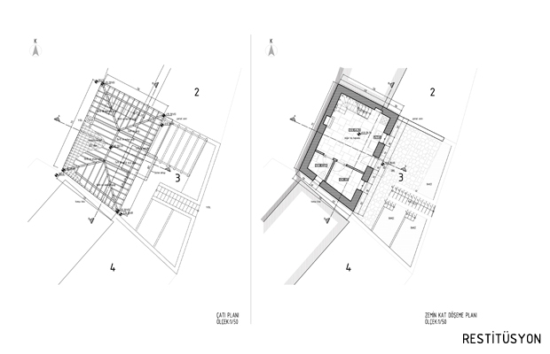
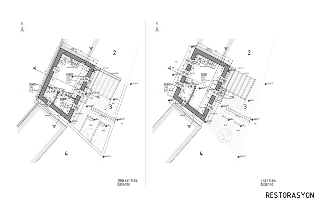
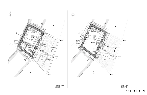
Vaziyet planı yerleşimi açısından haritadan bakıldığında dikdörtgen plan şeması mevcuttur.